5 bedroom apartment in Santarém

365 000€

  • 7
  • 5
  • 2
  • Usable: 201m2
  • Floor: 288m2
  • C.E.: E
  • Year: 1950
  • Solar Orientation: North, South
  • Ref: 63613-MCGO62396

Location

Santarém, Santarém, Marvila, Santa Iria da Ribeira de Santarém, São Salvador e São Nicolau, Vale de Estacas (São Salvador)

VR Tour

Description

Magnificent 5-bedroom apartment completely refurbished in a great location. Just a few minutes from Santarém city center and the freeway. Close to hospitals, supermarkets, pharmacies, fire stations, gyms, schools and public transport.
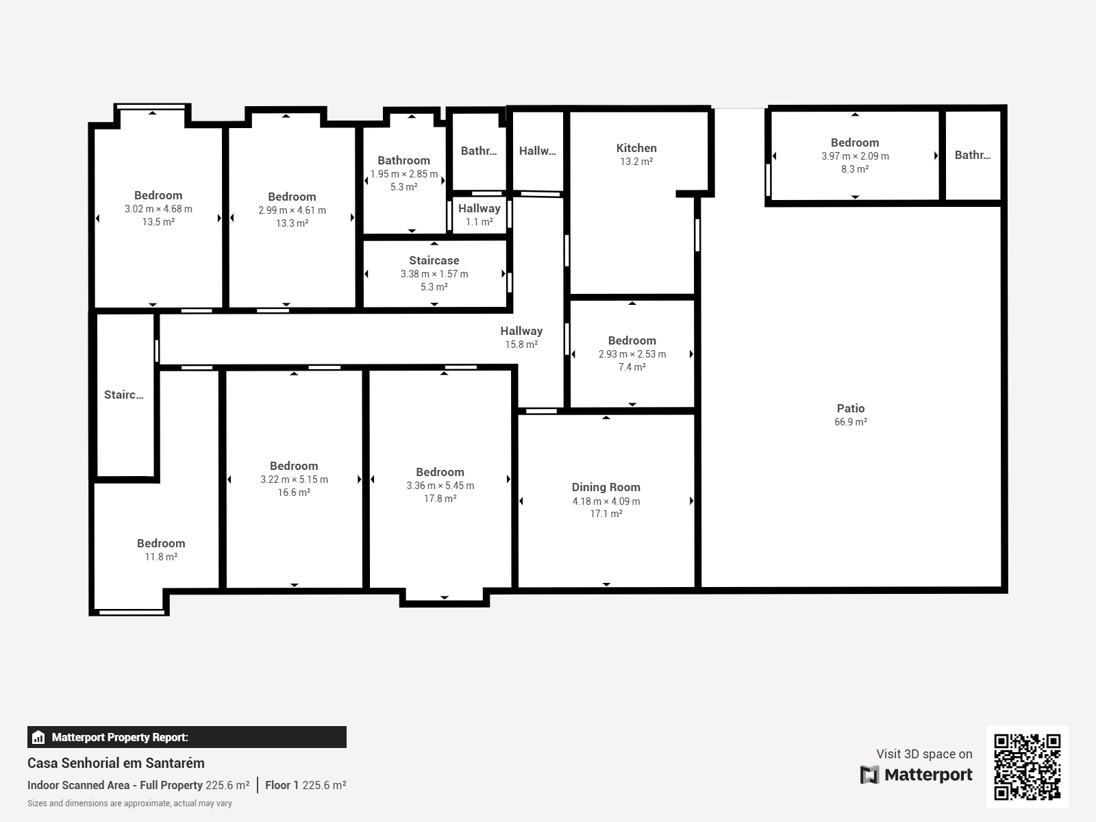
The apartment, located on the 1st floor with 2 entrances and a large attic with magnificent ceilings, offers 201 m² of living space, distributed over 5 spacious bedrooms, 2 modern bathrooms, 2 large and bright living rooms, an office, false ceilings with built-in lights and noble wood.
The kitchen is fully equipped with hob, oven, extractor fan, 100lt cylinder, washing machine and dishwasher, combined, with access door to private terrace, with great sun exposure, reading / leisure room and the terrace, with great sun exposure, guarantees natural light throughout the day, ideal for moments of outdoor leisure. The property also has air conditioning in some rooms, reinforced flooring for greater security, a 72 m² attic, and parking for more than 2 cars, as well as additional storage, optimizing the space.
Come and visit.

Attributes

  • Terrace
  • City View
  • Air Conditioning
  • Equipped Kitchen
  • Living Room
  • Piped Water
  • Good Solar Exposure
  • Built-in wardrobe

Divisions

Blueprints

Floor name: 1

Division Area Note
Bedroom
Bedroom
Bedroom
Bedroom
Bedroom
Room
Room
Kitchen
WC
WC
Hall
Attic
Parking
Terrace